
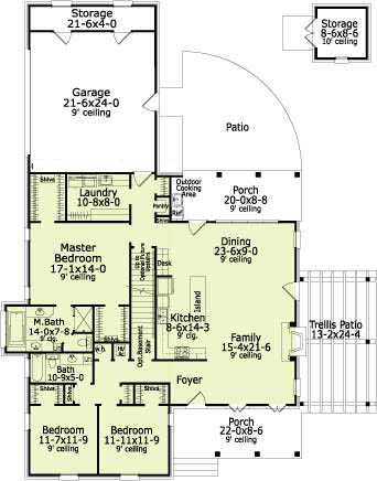
Kabel House Plans Acadian House Plans.

Kabel House Plans.

More Information About Usa House Plans On The Site Http Www.

Cambrian Zero Lot House Plans Click For More Details.

Southern Louisiana House Plans House Plans Kabel House Plans.

Your House Plans Different Our Estimates On Kabel House Plan.

Southern Louisiana House Plans House Plans Kabel House Plans.

Southern Louisiana House Plans House Plans Kabel House Plans.

Jasper Zero Lot House Plans Click For More Details.

House Plan Country French House Plan Designs Kabel House Plans.